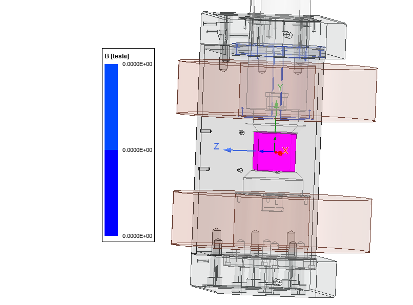
为什么我在maxwell磁场仿真中,中间没有办法体现磁场呀,这是我做的和出现的问题


我用的是maxwell2022R1版本,以下是我操作的流程




尝试过的解决方法 是需要重新赋值吗
怎么能够达到这样效果呀








下午好🌅🌅🌅
本答案参考通义千问
在使用 ANSYS Maxwell 2022 R1 进行磁场仿真时,如果发现中间区域没有显示磁场,可能是由于以下几个原因导致的。以下是对问题的详细分析以及解决方案,并用加粗强调关键点。
确认仿真已完成且无错误
检查场图类型设置
验证模型中是否有激励源和磁性材料
优化网格划分
检查边界条件
重新运行仿真
如果你使用的是 Maxwell 2022 R1 的脚本语言(如 Python 脚本),可以参考以下示例代码:
# 示例:创建一个简单的线圈并设置磁场分析
from ansys.maxwell import Maxwell
# 初始化 Maxwell
maxwell = Maxwell()
# 创建项目
project = maxwell.new_project()
# 添加线圈
coil = project.add_coil(name="Coil1", current=10)
# 添加磁性材料
magnet = project.add_magnet(name="Magnet1", material="NdFeB")
# 设置边界条件
project.set_boundary_condition("Symmetry", "X", "Plane")
# 划分网格
project.mesh()
# 运行仿真
project.run_simulation()
# 查看磁场
field_viewer = project.get_field_viewer()
field_viewer.show_field("Magnetic Flux Density", "Vector")
注意:以上代码仅为示意,实际使用需根据你的具体模型调整参数。
| 关键点 | 解决方案 | |--------|----------| | 磁场未显示 | 检查仿真是否完成,场图设置是否正确 | | 模型缺失激励源 | 确保模型中有电流源和磁性材料 | | 网格划分不足 | 对关键区域进行网格细化 | | 边界条件不当 | 合理设置边界条件,避免限制磁场传播 |
如果你能提供具体的模型截图或更详细的设置信息,我可以进一步帮助你定位问题!